---
title: "Byrådet vedtager ambitiøs udviklingsplan for Ølstykke Fritidsområde"
description: "Onsdag den 30. oktober vedtog byrådet i Egedal Kommune en udviklingsplan for Ølstykke Fritidsområde. Planen er blevet til i tæt samarbejde med områdets brugere."
date: "2024-11-04"
created: "2024-11-04"
---

[Hjem](https://egedalkommune.dk/)

                    [Nyheder](https://egedalkommune.dk/nyheder)

                [Byrådet vedtager ambitiøs udviklingsplan for Ølstykke Fritidsområde](https://egedalkommune.dk/nyheder/byraadet-vedtager-ambitioes-udviklingsplan-for-oelstykke-fritidsomraade)

# Byrådet vedtager ambitiøs udviklingsplan for Ølstykke Fritidsområde

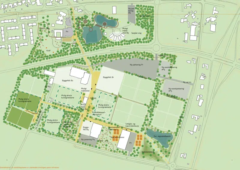
Onsdag den 30. oktober vedtog byrådet i Egedal Kommune en udviklingsplan for Ølstykke Fritidsområde. Planen er blevet til i tæt samarbejde med områdets brugere. ”Planen skal give bedre fysiske rammer for idræts- og fritidsaktiviteter i området”, siger borgmesteren.

## Styrket sammenhæng i området

Udviklingsplanen skal sikre plads til både eksisterende og nye aktiviteter,
bl.a. den kommende multihal. Som led i planen skabes en bedre sammenhæng på
tværs i området med bedre stiforbindelser, mødesteder og rekreative områder, så
man kan mødes på tværs af aktiviteter og områder. Endelig bliver der flere
adgangsveje til området og nye parkeringsmuligheder.

Borgmester i Egedal Kommune, Vicky Holst Rasmussen (S) siger:

*”Jeg erstolt af den ambitiøse udviklingsplan, som vi har vedtaget. Planen er udvikleti tæt samarbejde med de lokale foreninger, som også skal være med til at føreplanen ud i livet. Byrådet har et skarpt fokus på at styrke dialogen medforeningerne og sikre de bedst mulige rammer for en aktiv fritid. Det kommerbl.a. til udtryk i denne udviklingsplan.*

## Langsigtet udviklingsstrategi

Udviklingsplanen
beskriver den langsigtede strategi for områdets videre udvikling. Der er dog
allerede besluttet en hurtig igangsættelse af de første projekter. Bl.a. er der
i Egedal Kommunes budget for 2024 afsat 6 mio. kr. til nye tennisbaner og
forbedring af parkeringspladsen ved tennishallen.

Også
viceborgmester Charlotte Haagendrup (M), som er formand for Kultur-, Fritids-
og Erhvervsudvalget, fremhæver samarbejdet med foreningslivet:

*”De kommendetennisbaner anlægges i tæt samarbejde med Ølstykke Tennis- og Padelklub. Skyttehallenblev til i tæt samarbejde med Ølstykke Skytteforening. Ølstykke Fodboldklub er medmidler fra borgerbudgettet og fonde ved at udvikle en ny aktivitetsplads midt iområdet.”*

## Rekordbeløb til ny multihal

I budgettet for 2025 er der afsat et rekordbeløb på 110 mio. kr. til en ny
multihal, som bliver bygget i den nordlige del af området. Det store og
ambitiøse projekt forventes igangsat allerede i løbet af 2025.

Vicky Holst Rasmussen
udtaler:

*”Vi har grebet en fantastisk mulighed for at bygge en ny hal og fåmere plads. Det kunne vi ikke have gjort uden udsigten til en stor, privat donation, som viser meget frem til. Jeg er så glad for, at flere børn og unge nu fårmulighed for at dyrke sport og være en del af foreningslivets fællesskab.Samtidig er jeg stolt af det konstruktive samarbejde, der har været mellembyrådet og HØJ om en løsning til gavn for hele lokalsamfundet.”*

Charlotte Haagendrup (M) tilføjer:

*”En ekstra hal er etkæmpe løft til Ølstykke Idrætscenter og til sportsfaciliteter og kulturliv ihele Egedal. Beslutningen om en ny Multiarena i Ølstykke viser, hvor meget detkan flytte, når vi har et stærkt samarbejde mellem erhvervsliv, civilsamfund ogkommune.”*

Næste skridt i den videre udvikling af Ølstykke Fritidsområde er
udarbejdelsen af en lokalplan, som forventes at gå i gang i december 2024.
Planen vil danne rammerne for den videre udvikling og arbejdet med de konkrete
initiativer.

[Mere om udviklingsplanen for Ølstykke Fritidsområde](https://egedalkommune.dk/MOLIRIPAGE/ffe9979c-06bd-4f14-b557-c2bf9cc7baad)

                ![](https://egedalkommune.dk/i/MOLIRIMEDIA/46eb7dee-4c9d-4e48-c5cc-08dcfb30d910?width=800)

## Kontakt

### Kultur og Fritid

Dronning Dagmars Vej 200

                                    3650

                                    Ølstykke

### Ring til os

[7259 7656](tel:7259%207656)

### Skriv til os

[Skriv til os via digital post (borger)](https://post.borger.dk/send/16d885c7-5ceb-43d4-ab10-5fb5ccfa9dab/0d54c00a-ba00-4bb7-a687-4eecef23d413/)
